Warish Hall Farm, Takeley
BAYA Projects was instructed to work alongside the Weston Homes design team to bring forward a planning application on a parcel of strategic land located in Essex.
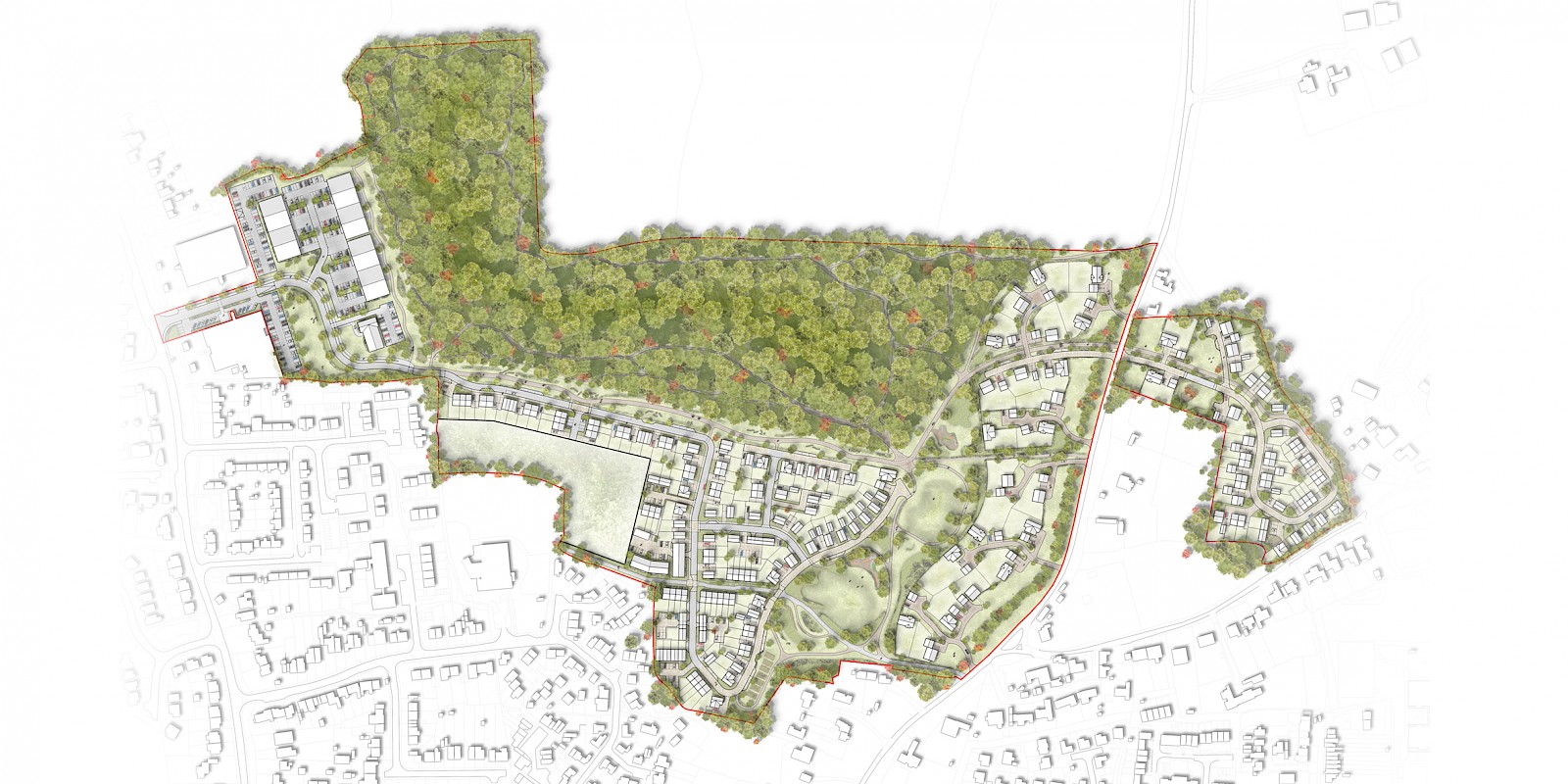
The design strategy had to focus on high-quality architecture and broader master planning to address some of the challenges posed by the constraints offered by the site, including the impact on the countryside, Listed Buildings and Ancient Woodland.
Proposals would provide a mix of high-quality housing, including affordable homes, in a sustainable location to help meet the supply needs of the district. In addition, new commercial space would provide employment opportunities to the locality alongside community benefits with a new medical centre, extension to the school playing field and the Ancient Woodland, areas of public open space and pedestrian and cycle routes.
All Projects




